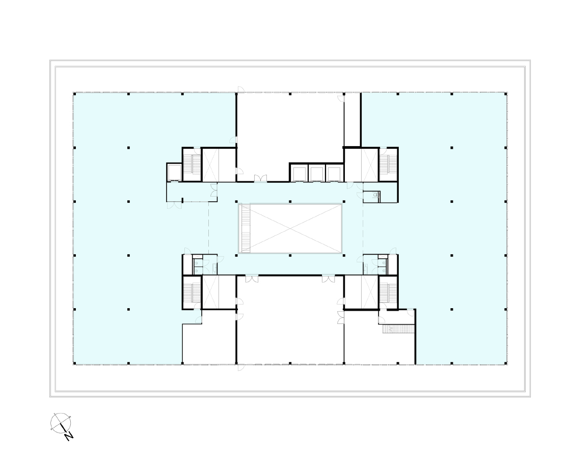
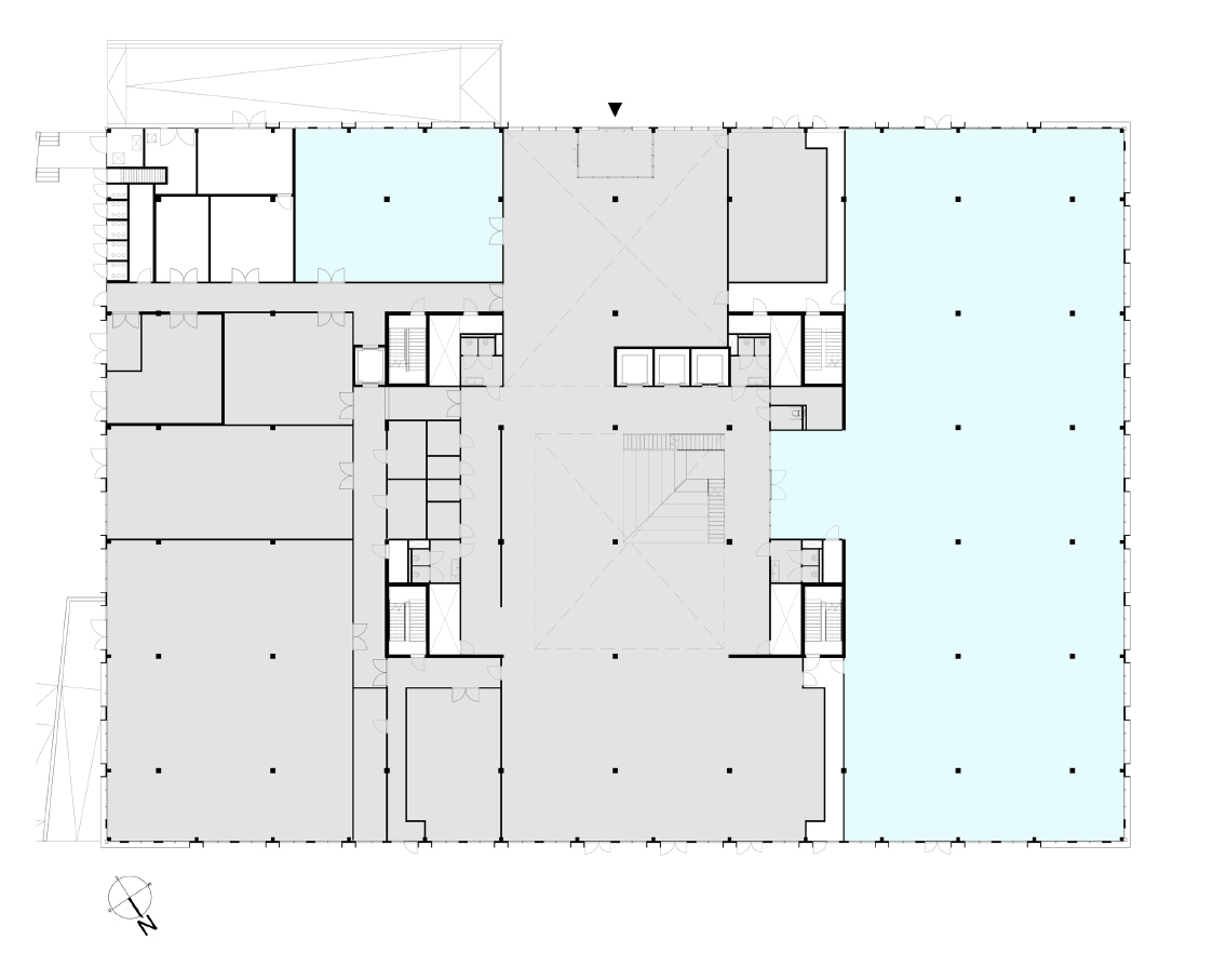
Floorplans &
Testfits
Ground floor
= Office/lab: 1,200 sq m LFA
= Common room: 2,035 sq m LFA
First floor
= Office/lab: 2,975 sq m LFA
Second floor
= Office/lab: 3,200 sq m LFA
Third floor
= Office/lab: 3,320 sq m LFA
Fourth floor
= Office/lab: 1,715 sq m LFA
Testfit
50% office / 50% lab
Testfit
4 tenants
